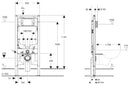
Description
Sigma 8 Counter Concealed Wall Hung Duofix Frame Front Flush
- Suitable for Wall Hung Pan
- Strong, stable and easy to service: each frame is tested to withstand 400kg of weight, compliant to AS 1172.1.
- Compatible with all mechanical Sigma buttons available in Australia.
- Front press only: Min hob depth is 90mm
- WELS 3 Star 6L/3L or WELS 4 Star 4.5L/3L.
Made in Germany
